



SFA SANISPEED -evakuointipumppu, viitenumero 0101300, on tehokas ja luotettava ratkaisu harmaiden vesien poistoon keittiöissä ja intensiivisessä käytössä olevissa pesuloissa. Suunniteltu erityisesti suurten jätevesimäärien käsittelyyn, se sopii erinomaisesti kotitalouksiin, liiketiloihin tai pienyrityksiin, jotka tarvitsevat tehokasta evakuointia ilman, että ne ovat riippuvaisia painovoimaisesta viemärijärjestelmästä. Tämä pumppu on ihanteellinen käsittelemään kodinkoneista, kuten pesualtaista, astianpesukoneista, pyykinpesukoneista ja lasinpesukoneista, tulevia jätevesiä, tarjoten suurta monipuolisuutta sekä kotitalous- että ammattikäyttöön.
Kapasiteetilla nostaa vettä jopa 7 metriä pystysuoraan tai 70 metriä vaakasuoraan, SANISPEED tarjoaa optimaalisen ratkaisun asennuksiin, joissa viemäriputket sijaitsevat kaukana tai korkeammilla tasoilla. Tehokkaan pumppausjärjestelmänsä ansiosta tämä pumppu voi ylittää asennuksen esteet ja poistaa jätevedet nopeasti ja tehokkaasti, jopa haastavimmissa ympäristöissä. Tämä monipuolisuus on erityisen hyödyllinen tiloissa kuten kellarit, ullakot tai liiketilat, joissa perinteinen painovoimainen viemäröinti ei ole mahdollista.
SANISPEED-järjestelmän toiminta on täysin automaattinen, mikä helpottaa sen käyttöä ja minimoi huollon tarpeen. Kun säiliön vedenpinta saavuttaa 95 mm, moottori käynnistyy automaattisesti, aloittaen jätevesien poiston ilman manuaalista puuttumista. Tämä varmistaa jatkuvan ja luotettavan suorituskyvyn intensiivisessä käytössä, kuten ravintoloissa, baareissa tai pesuloissa, joissa kodinkoneet ovat jatkuvassa käytössä.
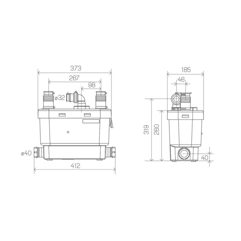
SANISPEED on varustettu neljällä 40 mm halkaisijalla olevalla sisäänmenolla, mikä mahdollistaa useiden laitteiden liittämisen samanaikaisesti, optimoiden jätevesien hallinnan. Kaksi sisäänmenoa sijaitsevat yläosassa ja kaksi alhaalla sivuilla, mikä helpottaa sen asennusta eri kokoonpanoissa. Lisäksi tämä pumppu pystyy käsittelemään myös koko kylpyhuoneen jätevedet, mukaan lukien suihku, bidee, pesuallas tai kylpyamme, mikä tekee siitä monipuolisen vaihtoehdon remontti- tai laajennusprojekteihin.
Yksi SANISPEED-pumpun keskeisistä ominaisuuksista on sen kestävyys kuumia vesiä vastaan, sillä se pystyy poistamaan vettä jopa 75°C lämpötilassa 5 minuutin ajan. Tämä tekee siitä ihanteellisen sovelluksiin keittiöissä tai pesuloissa, joissa kodinkoneet voivat tuottaa korkealämpöistä jätevettä. Vahvistettu jäähdytysjärjestelmä varmistaa, että pumppu voi toimia pitkään ilman ylikuumenemisriskiä, mikä lisää sen kestävyyttä ja luotettavuutta intensiivisessä käytössä.
Laite sisältää esiasennetun ulostulokulman, jossa on takaiskuventtiili, mikä estää poistoveden palaamisen järjestelmään. Tämä kulma on yhteensopiva 28 tai 32 mm putkien kanssa, vaikka suositellaan käyttämään 32 mm putkea moottorin optimaalisen suorituskyvyn ja tehokkaamman evakuoinnin varmistamiseksi.
SANISPEED-tekniset tiedot:
SANISPEED erottuu paitsi evakuointikapasiteetillaan ja kestävyydellään, myös alhaisella äänitasollaan 42 dB(A), mikä tekee siitä hiljaisen ja mukavan vaihtoehdon asuin- tai liiketiloihin. Lisäksi sen IP44-suojausluokitus takaa sen kestävyyden kosteutta ja roiskeita vastaan, mikä tekee siitä sopivan asennettavaksi kosteisiin tiloihin, kuten keittiöihin tai kylpyhuoneisiin.
Yhteenvetona, SFA SANISPEED -evakuointipumppu on ihanteellinen vaihtoehto intensiiviseen käyttöön keittiöissä, pesuloissa ja kylpyhuoneissa, tarjoten tehokkaan ja kestävän ratkaisun harmaiden vesien poistoon. Sen kyky käsitellä kuumia vesiä, helppo asennus ja hiljainen toiminta tekevät siitä täydellisen valinnan niille, jotka tarvitsevat vankan ja luotettavan ratkaisun jätevesien poistoon.