



SFA Saniswift Pro on harmaavesipumppuasema, joka on suunniteltu intensiiviseen käyttöön kaupallisissa ja asuinympäristöissä. Kompakti, tehokas ja helppo asentaa, se on ihanteellinen ratkaisu pesuloihin, ammattikeittiöihin, yhteisiin suihkuihin tai pieniin teknisiin tiloihin, joissa luonnollinen vedenpoisto ei ole mahdollista.
Älykkään suunnittelunsa ja 610 W moottorinsa ansiosta Saniswift Pro pystyy poistamaan nesteitä jopa 9 metrin korkeuteen, virtausnopeudella jopa 5,88 m³/h. Sen terillä varustettu turbiini mahdollistaa pienten ruokajätteiden (paitsi luiden) murskaamisen, mikä helpottaa sen käyttöä ammattimaisissa pesualtaissa ja estää tukkeutumisia.
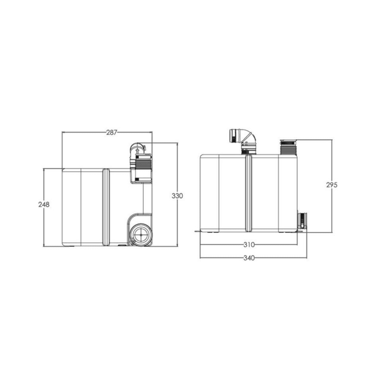
Pumppu kestää jopa 90 °C lämpötiloja enintään 5 minuutin ajan, mikä tekee siitä sopivan vaihtoehdon teollisiin astianpesukoneisiin, pesukoneisiin tai intensiiviseen käyttöön tarkoitettuihin pesualtaisiin. Siinä on kolme Ø40 mm sivutuloa, jotka mahdollistavat useita tulokonfiguraatioita ja helpottavat sen integrointia eri järjestelmiin.
Korkeatiheyksinen polyeteeni (PEHD) -rotaatiovalettu säiliö takaa korkean mekaanisen kestävyyden ja pitkäikäisyyden. Moottorin runko on valmistettu vahvistetusta polyamidista (PA66 + 30 % lasikuitua), ja turbiini on ruostumatonta terästä. Pneumaattinen tunnistusjärjestelmä varmistaa luotettavan ja tarkan käynnistyksen. Vakiovarusteisiin kuuluu integroitu takaiskuventtiili, liitäntäletkut ja lattia-asennuskiinnikkeet asennuksen helpottamiseksi.
Saniswift Pro ei vaadi kaivamista tai ennakkotyötä, mikä yksinkertaistaa asennusta jopa remonttien tai teknisten rajoitusten kohteissa. Lisäksi sillä on 3 vuoden takuu, mikä vahvistaa sen luotettavuutta vaativissa ja päivittäisessä käytössä.
SFA Saniswift Pro -pumppu on luotettava, tehokas ja monipuolinen ratkaisu harmaavesien poistoon vaativissa asennuksissa. Sen vankka suunnittelu ja helppo integrointi tekevät siitä ihanteellisen vaihtoehdon teknisiin remontteihin ja kaupallisiin sovelluksiin, joissa suorituskyky ja kestävyys ovat avainasemassa.